Richmond
61 Laity Street
21
Elegance with Enticing Charm!
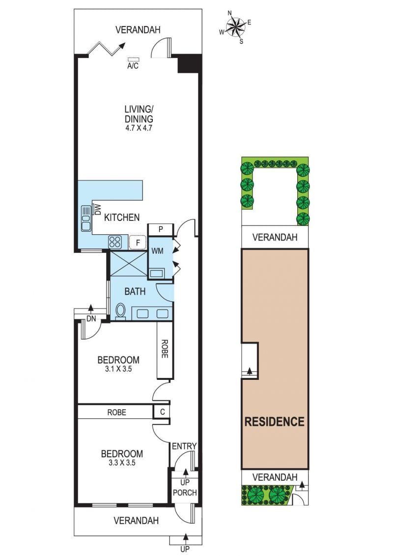
A magnificent blend of traditional character and practical contemporary living defines this bright and spacious single level Victorian style residence. Space and light are maximised with cleverly placed skylights and hardwood floors which seamlessly integrate open plan living and dining areas opening to a north facing courtyard garden, creating plenty of scope for relaxed outdoor living and entertaining. A recently renovated kitchen features Caesarstone benchtops, and two light filled bedrooms feature built in robes and share a generous, renovated bathroom with a double vanity. Well appointed with ducted heating and air conditioning, as well as European laundry and linen press, this excellent abode is situated on a quiet oneway street with ample street parking and four surrounding tram routes providing a convenient commute to the CBD. A range of amenities are within easy reach including Victoria Gardens shopping centre, Bridge Road and Victoria Street's cafes and restaurants, the MCG and the Yarra River.
Price:
LEASED