32 Hakatere Street, Northcote VIC
NORTHCOTE Expression Of InterestLuxury Wellness Home in Northcote with Complimentary Concierge Services
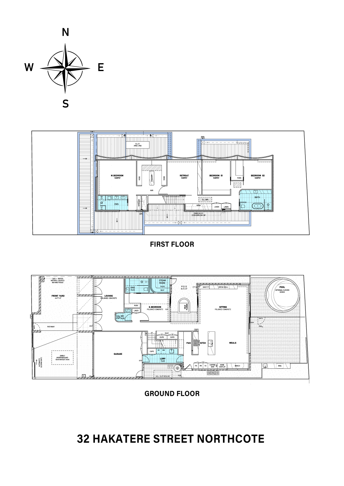
Homes by Homey is more than a developer, it's a lifestyle. Each wellness-focused residence comes with exclusive concierge benefits: five premium services every month, complimentary for five years. From cleaning and gardening to in-home massage, yoga, and chef-prepared dining, it's the comfort of home combined with the care of a luxury hotel.
Alba House embodies this vision. A residence where modern design and wellness-inspired living come together in perfect balance, it offers not just a home but a complete lifestyle. With state of the art wellness features and carefully considered details, Alba House represents a rare opportunity to secure elegance, vitality, and sustainability in the heart of Northcote.
Step through the door and you are immediately greeted by soaring three-metre ceilings, polished concrete floors, and expanses of reeded glass that play with natural light. The interiors are layered in crisp white tones and warm veneer joinery, creating a sense of calm sophistication. Large windows and skylights bring the outside in, while clever storage solutions and concealed finishes keep every space refined and functional.
This home places health and wellbeing at its core. Indulge in the cold plunge and heated swim-jet pool, unwind in the sauna, or enjoy the rejuvenating effects of red-light therapy built into the bathrooms. A Grander water system and integrated Billie taps ensure fresh, filtered water throughout the home, while advanced hydronic slab heating, hidden ceiling systems, and double glazing keep the environment consistently comfortable.
The kitchen is equally impressive, fitted with a Sub-Zero fridge and freezer, wine storage, and premium appliances, flowing seamlessly to an outdoor BBQ area designed for entertaining. Smart automation enhances everyday life with blackout blinds, an integrated speaker system, intercom and alarm, Tesla charging, and even a hidden secret room for added intrigue. Sustainability has been carefully considered with a 15kW solar system, Tesla battery storage, and a backup generator.
Outside, limestone paving and manicured turf complement the strong architectural lines of the home, while sliding gates, high fencing, fruit trees, and an Air Garden installation create privacy and a sense of sanctuary.
Adding to this lifestyle, the Homey Wellness Service Package ensures that your home and wellbeing are cared for long after move-in. With services ranging from eco-friendly cleaning and gardening to luxury wellness therapies and concierge support, every detail of daily living is supported for years to come.
SUBURB PROFILE
THORNBURY
Related articles

The Most-Recommend Real Estate Agents in Heidelberg Heights

How Has the Property Market in Brunswick East Changed Over the Past Year

Dog Off Leash Parks in Alphington
decades of experience
suburb-specific approach
high-rated reviews
decades of experience
suburb-specific approach
high-rated reviews
what our satisfied clients are saying
I had the opportunity to work with Collings Real Estate and their property manager Jake, and I must say that they have exceeded my expectations.
As a borderless investor, I was particularly impressed with their ability to secure a high-quality tenant and achieve market value rent for my property. Effective communication is crucial when managing a property from a distance, and I'm pleased to that their communication has been exceptional. Overall, I had a very positive experience with Collings Real Estate and Jake, and I strongly recommend their property management services to anyone seeking a trustworthy and professional team in Melbourne.
I've now used Collings twice, once for the leasing of an apartment and secondly for a sale. On the leasing front, Caleb and Jake were fantastic - easy to deal with, great communication, high quality professional photos and a fantastic write-up of the property. I had a tenant in within 2 weeks of posting.
On the sale, I sold a one-bedroom apartment in Collingwood and received the service I'd expect if I had been selling a multi-million dollar home. Caleb achieved a fantastic price outcome inside of two weeks of the property being listed, communicated consistently throughout and made the process easy and stress free. I would highly recommend Collings based on my experience.
As a landlord with over 20 years’ experience, I have seldom come across an agent as effective, hardworking, and dedicated to his customers’ needs as Jake Peters.
He was handed a tricky situation with a problem tenant (non-payment of several months of rent) and threw himself into the role, relishing the challenge & striving to get the best results for all parties. Jake is a credit to his profession and deserves the highest commendation.
Absolute legends at what they do. The team at collings assisted me with a sale of property and a rental as well. Their vibrant team have an attitude to always go above and beyond for their clients. Christian has the habit to always think outside the square and present some of the most innovative ways to sell your property.
You won’t just get the old tired ways with this team, they are quick, agile and always innovating. They’re setting some great examples for the younger generation, and I totally recommend them.
Fedja and Christian were an easy choice to sell with and absolutely nailed the marketing campaign.
I wouldn’t trust anyone else with the sale of my property! Highly recommend the team at Collings Real Estate.
This is the first time I've rented out a property and I decided to go with Collings real estate as I read so many good reviews - and I'm glad I did! Christian came to see me the following day, walked me through the process
I had my inspection the same week and listed the following day! The process was SO easy, and Christian has been an amazing agent the whole way! Such a pleasure to deal with - lots of experience , knowledge, very friendly, trustworthy and very efficient. Thank you for your amazing service !! I would definitely recommend to everyone
It was a pleasure dealing with Christian from the time I listed my property for sale until the successful recent sale of my property at auction.
Christian always kept me updated throughout the entire sales campaign. He informed me at all times of his market knowledge relevant to properties like mine. Christian gave me honest and realistic expectations as to an estimated sale price range. In summary, I felt at all times I was part of a team that achieved a successful sale result. Thank you Christian.
I recently purchased my first investment property and was very new to the real estate world. This soon changed when I met Christain at Collings Real Estate.
WOW, what an experience I have had! Christian was full of knowledge and gave me the confidence and assurance I was looking for. Before deciding to go with Collings Real Estates I met with many agents and compared their knowledge, responsiveness, prices and willingness to answer all my questions. I soon discovered not many of the agents had the patience or time to answer many of my questions except 1- Christian at Collings. Christian has been EXCEPTIONAL in the service he has provided! My property was leased in an incredible turn around time of 3 days! What is even more impressing is that Christian has gone out of his way (and outside duties of his role) to make the whole process SO smooth! Thank you Christian for being so amazing in what you do! Your responsiveness and positive outlook has made my first experience exceptional! On referring Christian to other family members the feedback has already been fabulous! Thank you Christian, I look forward to working with you for many, many years to come! unfortunately your now stuck with me!
Fantastic Family run agency I highly recommend Collings Real Estate Northcote to manage your rental property.
Right the the start they have made everything so easy. Communication is excellent. Everyone is very professional & extremely helpful. Change of tenants have been a seamless process. Thanks so much for all you do Collings RS!!
I moved from a ‘branded’ real estate group over to Collings for the management of my properties and I could not be happier!
Christian runs a great team always keeping me information as the the status of my properties, ensuring all property inspections and maintenance issues are dealt in a timely manner using his recommended trades I don’t need to worry about a thing! I would strongly recommend the Collings team to anyone considering a fresh approach to property management!
We engaged Collings Real Estate to lease out our four town houses. They were fantastic from day 1 and certainly went the extra mile in order to get us the price we wanted and with minimal delays.
The results exceeded our expectation which was a function of our great product combined with hard work from Christian and the crew. If you are considering an agent we highly recommend Collings.
We are renting our house through Collings. Christian, Caleb and the team are fantastic. Extremely efficient and always available. Furthermore they are very cost efficient, no hidden fees !! Very honest and authentic young people. I can highly recommend them.
I spoke with 4 agents before deciding to go with Christian. They all quoted higher admin fees and recommended a lower rent... furthermore they left me feeling like I was just another paying customer they need to bring on board. Christian impressed me with his honesty, enthusiasm and responsiveness. They organised everything for my house (cleaning, plumbing etc) and rented it in no time. If you need someone you can trust; someone who will organise everything for you effectively and efficiently; someone who will be there for you, than look no further!
Fedja and Tom from the Collings team were excellent and very professional in the process of selling our home.
Constant communication and also provided weekly reporting from the open inspections made us feel assured and confident of a successful sale.
Caleb recently helped us sell our property in Preston. We were extremely impressed with his thorough approach and drive to achieve the best possible outcome for us.
We would not hesitate in recommending Caleb and the Collings Real Estate Team and look forward to working with them in the future.
It was a pleasure dealing with Fedja from the time I listed my property for sale until the successful recent sale of my property at auction. Fedja always kept me updated throughout the entire sales campaign.
We would not hesitate in recommending Caleb and the Collings Real Estate Team and look forward to working with them in the future.